Trinkwasserzweckverband Bastei
Home Kontakt Impressum Datenschutz
Wetterstation Lohmen

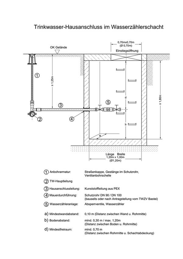
Wasserzähler-Schacht

Prinzipskizze Wasserzählerschacht

Download Prinzipskizze Wasserzählerschacht

powered by webEdition CMS